欢迎光临寻材问料网!
材料数据库
英文站
登录
注册
快速登录
首页
创新设计
解决方案
材料数据库
社区
当前位置:
社区
搜索结果
最新发表
最新回复
最多查看
最多回复
精华
0
汞对人体及环境的影响
汞对人体及环境的影响汞对人体健康的影响汞是银白色液态金属,主要以汞元素(金属汞)、无机汞(汞盐)和有机汞3种形式存在。有资料称汞在生物体内会形成有机化合物,因此少量的液态汞吞食一般来讲是无毒的,但汞蒸气和汞盐(除了一些溶解度极小的如硫化汞)都是剧毒的。汞及其化合物的毒性会因吸入或食入方式的不同,或量的不同...
二哈
2015-08-25更新
(
6
)
(
0
)
回复(0)
阅读(87)
0
我的绘画是道算术题
卷福
2015-08-27更新
(
6
)
(
0
)
回复(0)
阅读(87)
0
蓝色与红色:花瓶设计
俞诺诺
2015-08-25更新
(
6
)
(
0
)
回复(0)
阅读(87)
0
硅基本介绍
硅硅是一种化学元素,英文名称Silicon,化学符号是Si,旧称矽(台湾、香港目前仍称矽xī),原子序数14,相对原子质量28.0855,密度2.4g/cm³,熔点1414℃,沸点2355℃,属于元素周期表上IVA族的类金属元素。硅有晶体硅和无定形硅两种同素异形体,晶体硅为钢灰色,无定形硅为黑色,晶体硅属于原子晶体,硬而有光泽,有半...
二哈
2015-08-24更新
(
6
)
(
0
)
回复(0)
阅读(87)
0
Smart forspeed
卷福
2015-08-30更新
(
6
)
(
0
)
回复(0)
阅读(87)
0
厨桌
俞诺诺
2015-08-27更新
(
6
)
(
0
)
回复(0)
阅读(87)
0
锡的历史及行业发展
锡的历史及行业发展锡的历史锡是人类最早发现并得到广泛应用的金属之一,古英文字是Tin,元素符号Sn,源于拉丁文Stannum,史前时代就已被发现。由于自然界的锡很少呈游离状态存在,因此就很少有纯净的金属锡。含锡的主要矿物是锡石,其化学成分为二氧化锡,只要把锡石与木炭放在一起烧,木炭便会把锡从锡石中还原出来。很显然...
二哈
2015-08-26更新
(
6
)
(
0
)
回复(0)
阅读(87)
0
小盆友们!排版什么的不要再说你们不会了好么!
洛基
2015-08-28更新
(
6
)
(
0
)
回复(0)
阅读(87)
0
1000张背景(可下载)
免费下载地址: http://yunpan.cn/QCAnkH7WE8CfI 提取码 db0f
乔傅
2015-08-26更新
(
6
)
(
0
)
回复(0)
阅读(87)
0
镍对人体健康的影响
镍对人体健康的影响镍对人体健康影响简介镍是人体必需的生命元素,在人体内含量极微,正常情况下,成人体内含镍约10mg,血液中正常浓度为0.11μgNi. ml-1。在激素作用和生物大分子的结构稳定性上及新陈代谢过程中都有镍的参与,人体对镍的日需要量为0.3mg。缺镍可引起糖尿病、贫血、肝硬化、尿毒症、肾衰、和肝脂质和磷脂质代...
二哈
2015-08-27更新
(
6
)
(
0
)
回复(0)
阅读(87)
0
14款个性儿童床 哪个是父母最爱
洛基
2015-08-29更新
(
6
)
(
0
)
回复(0)
阅读(87)
0
可爱的儿童注射器
带孩子去医院看病,最愁人的应该就是打针问题了。一看到那尖细的针头,即使是成人也有不少会感到头晕,更何况是孩子呢!所以设计师便打算给注射器外观稍作改造,让其威慑力下降,即便无法完全消除孩子的恐惧感,但是通过卡通造型的柔化作用,想必也会有不少勇敢的孩子会渐渐地不再恐惧注射器了。
阿璃
2015-08-28更新
(
6
)
(
0
)
回复(0)
阅读(87)
0
可以立着放的相册。
当你摊开的时候,封面和封底的折角还可以起到衬托的左右。
Harry
2015-08-26更新
(
6
)
(
0
)
回复(0)
阅读(87)
0
轮椅设计
吧唧
2015-08-30更新
(
6
)
(
0
)
回复(0)
阅读(87)
0
世博会的建设进展(下)7
阿璃
2015-08-27更新
(
6
)
(
0
)
回复(0)
阅读(87)
0
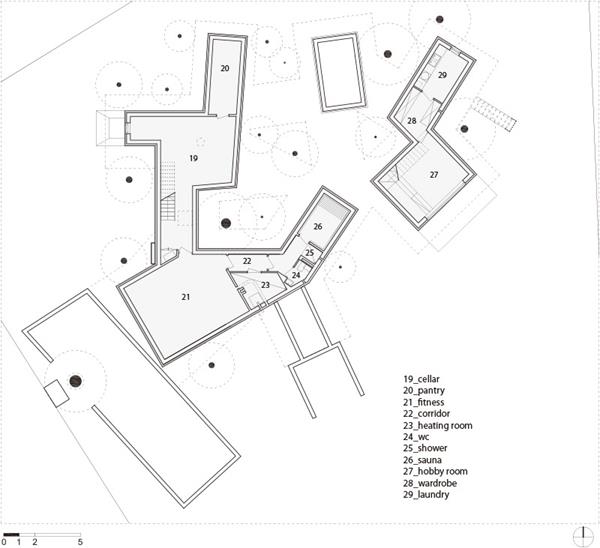
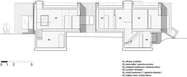
波兰:树林间的住宅
这栋位于华沙树林中的建筑,必须要在不破坏现状树木的条件下进行建设。为此建筑的外表皮呈凹凸状,凸起像触手一样伸向树林深处,凹处则避开场地上原有的树木,同时中间体量开了几个内庭院,为现状树木腾出足够的生长空间,也为建筑内部空间带来更多的光与风景。与树木共生,占地面积300平方米的建筑严格遵守场地现状----不破...
Harry
2015-08-27更新
(
6
)
(
0
)
回复(0)
阅读(87)
0
相机表面有颗粒的漆叫什么漆?
相机表面有颗粒的漆叫什么漆?
D77
2015-08-25更新
(
6
)
(
0
)
回复(0)
阅读(87)
0
作为一个轮毂控
sunsun
2015-08-27更新
(
6
)
(
0
)
回复(0)
阅读(87)
0
石头?是软软的枕头啦
Harry
2015-08-29更新
(
6
)
(
0
)
回复(0)
阅读(87)
0
燕山大学成功开发负离子防霾口罩
雾霾,如今已经成了民众耳熟能详的气候名词。随着雾霾突破首都经济圈,走向全国,因之而生的雾霾经济也更上了一个台阶。所谓防雾霾口罩,除了具有普通口罩的阻止粉尘进入人体呼吸器官的功能外,最主要的目的是防止PM2.5被人体吸入。2014年9月,北京市工商部门在对多个口罩品牌进行检查时,发现其声称的“防雾霾”“防PM2.5”...
夏洛克
2015-09-02更新
(
6
)
(
0
)
回复(0)
阅读(87)
上一页
1056
1057
1058
1059
1060
1061
1062
1063
1064
1065
下一页
共1077页
转到第
相关话题
材知道
70 人关注
比亚迪、富士康纷纷入围!2016手机行业最佳供应商重磅出炉
汽车
40 人关注
汽车产业链全景图
材知道
70 人关注
必看!机器人产业链全景图
汽车
40 人关注
新能源汽车产业链全景图
交通运输
19 人关注
高铁产业链全景图
材知道
70 人关注
【重大新闻】《新材料产业发展指南》正式发布 聚焦九大重点任务
热门人物
新材料在线-发哥
CIO
深圳市寻材问料网络科技有限公司
gdcjz
cmf设计师
深圳市优维尔科技有限公司
Andrew
测试经理
赛瑞
qlh9005
研发工程师
夏洛克
夏洛克
sunsun
材料工程师
寻材问料管理员
网站管理员
寻材问料
400-7755-899